上海
关闭
S
上海
您的位置: 首页 > 租房 > 古美小区,南北通风好,全明大一房,看房方便,拎包入住。

古美小区,南北通风好,全明大一房,看房方便,拎包入住。

2777元/月(押一付三)
  • 整租

    租赁方式

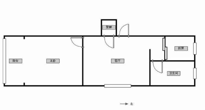
  • 41.0㎡

    面积

  • 1室1厅1卫

    户型

  • 精装

    装修

  • 低层/6

    楼层

  • 朝向

小区 : 古美小区
位置 : 距离12号线东兰路站737米

房源概况

房屋配套

  • 电视

  • 空调

  • 电梯

  • 冰箱

  • 洗衣机

  • 热水器

  • 阳台

  • 沙发

  • 衣柜

  • 抽油烟机

  • 独立卫生间

房屋介绍

  • 核心卖点

    小区介绍:拥有以上的绿化率,堪称天然氧吧,有客户称在此园居住能多活几十年。小区,有专门到达公交车站,上班方便。
    房源介绍:
    1.这套房子是朝向的几房,户型好,大厅主卧朝向合理,每个房间都很大,客厅很大
    2.敞亮,采光相当好,从太阳升起来到落下一直都有采光
    业主情况:业主诚心出租,随时看房,有缘看到我的帖子可以给我打电话!房产顾问的我竭诚为您!

  • 小区配套

    小区内部环境优雅,配套成熟,交通便利,住得舒适。

  • 服务介绍

    本人从事房多年,公司有大量好房源,欢迎进入我的店铺查看,欢迎随时电话咨询,相信我的,为您置业安家保驾护航。


小区简介

古美小区

  • 参考均价 待定元/㎡
  • 建筑类型
  • 建筑年代 0
  • 产权年限
  • 总户数
  • 物业费
  • 绿化率
  • 停车位
古美小区